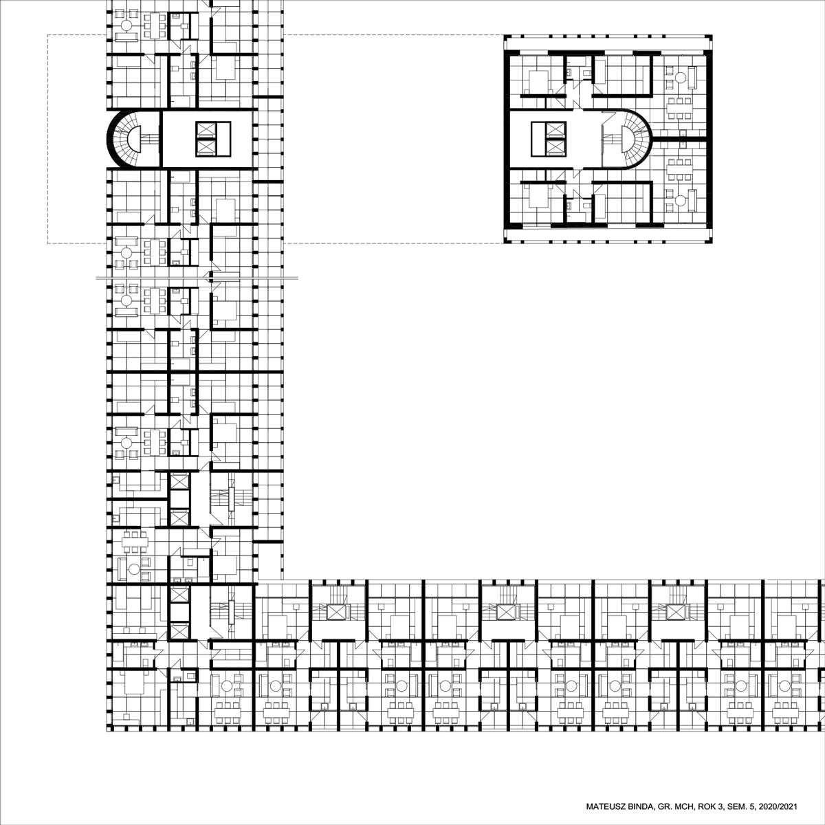
A-6