ALEKSANDRA CHMURA ZE ZŁOTYM MEDALEM W KONKURSIE ISARCH AWARDS

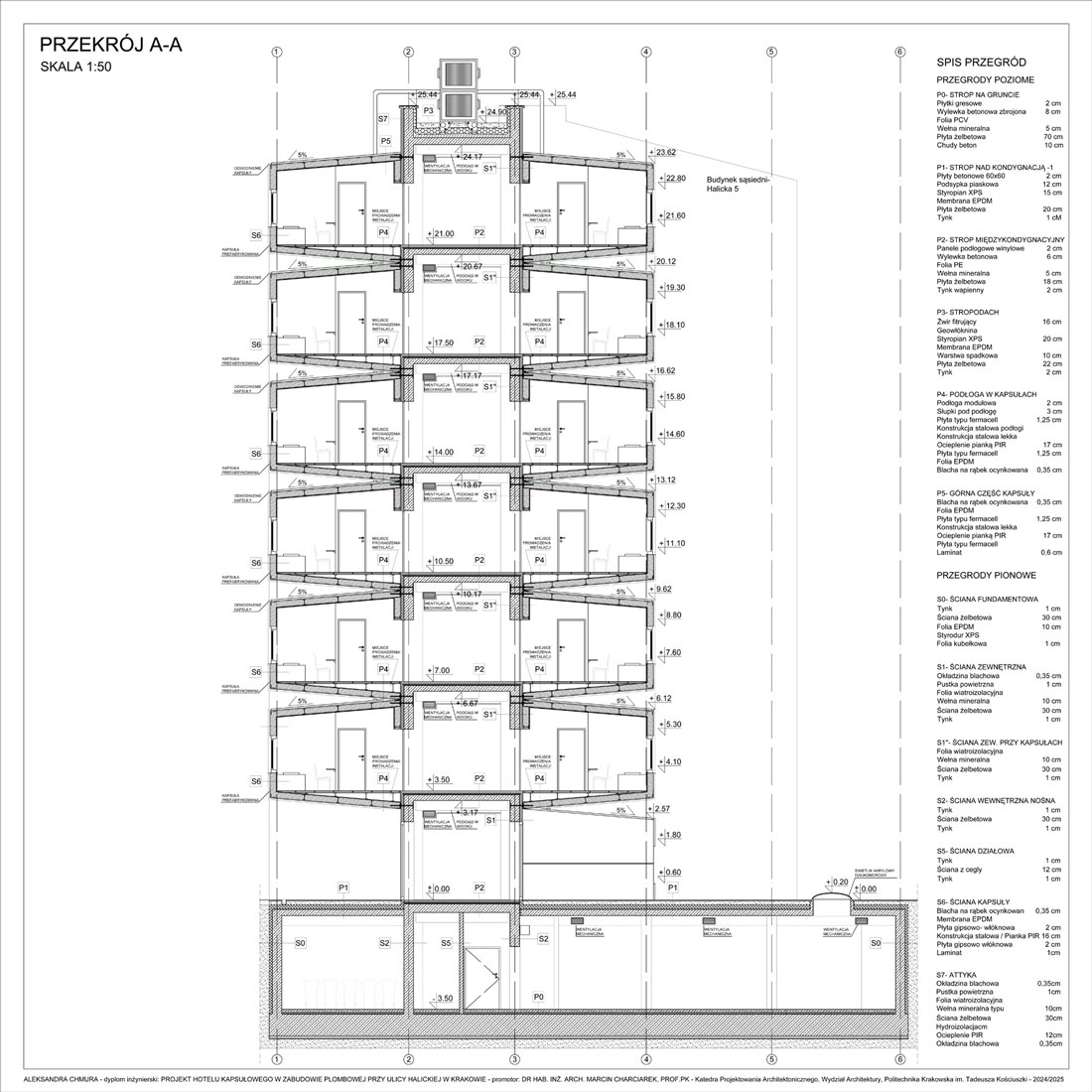
Miło nam poinformować, że studentka Aleksandra Chmura otrzymała ZŁOTY MEDAL (kategoria Student) za projekt dyplomu inżynierskiego „Hotel kapsułowy przy ul. Halickiej w Krakowie” w konkursie organizowanym przez ISARCH. Promotor pracy – Dr hab. inż. arch. Marcin Charciarek, Prof. PK. Konkurs ISARCH Awards został ustanowiony w 2001 roku i jest przyznawany corocznie przez międzynarodową organizację ISARCH. Wśród jurorów konkursu są tacy znakomici architekci jak Peter Cook (założyciel Archigram), Ben van Berkel (UN Studio), Odile Decq, Diego L. Arahuetes (studio Kengo Kuma), Fuensanta Nieto (Nieto Sobejano Arquitectos) czy Sou Fujimoto (Sou Fujimoto Architects). Nagroda obejmuje ponad 10 000 zgłoszeń z około 65. krajów na całym świecie, obejmujących interdyscyplinarne dziedziny projektowania i sztuki. Konkurs ISARCH Awards to międzynarodowe nagrody skierowane do profesjonalnych firm projektowych i utalentowanych studentów kierunków projektowych.

Celem ISARCH jest stworzenie platformy do dyskusji na temat rozwiązań architektonicznych i projektowych oferowanych przez globalne firmy i uniwersytety. Konkurs ma na celu promowanie awangardowych trendów i docenianie nowych badań naukowych, które pojawiają się w branży. Kolejnym celem konkursu ISARCH Awards jest zachęcenie młodych architektów i projektantów do udziału w debacie na temat różnych dziedzin projektowania, wnosząc swój unikalny wkład w postaci wizji i opinii.

Link do rezultatów: https://isarch.org/2025-isarch-architecture-award-student