20 grudnia 2024 roku na uroczystej gali wręczenia dyplomów ukończenia studiów II stopnia WA PK poznaliśmy wyniki konkursu Dyplom Roku 2024 organizowanego przez Wydział Architektury Politechniki Krakowskiej. Nagrody zostały przyznane najlepszym pracom dyplomowym magisterskim obronionym w 2024 roku.
Zgłoszone prace oceniała komisja konkursowa w składzie:
Przewodniczący Komisji: Dziekan Wydziału Architektury PK – Prof. dr hab. inż. arch. Magdalena Kozień-Woźniak.
Członkowie Komisji: dr inż. arch. Agnieszka Wójtowicz-Wróbel – Prodziekan WA PK; dr hab. inż. arch. Urszula Forczek-Brataniec, prof.PK – Prodziekan WA PK; prof. dr hab. inż. arch. Tomasz Kozłowski – Prodziekan PK; dr inż. arch. Łukasz Stożek, prof. PK – pełnomocnik dziekana WA do spraw konkursów, sędzia referent; arch. Marek Kaszyński – Przewodniczący Rady Małopolskiej Okręgowej Izby Architektów RP; arch. Magdalena Buczyńska – Prezes Krakowskiego oddziału SARP; dr hab. inż. arch. Jerzy Wowczak – przedstawiciel Stowarzyszenia Konserwatorów Zabytków oraz Julia Cieślik – przedstawicielska Samorządu Studentów PK.
Sekretarz Komisji: Dr inż. arch. Łukasz Stożek, prof. PK
W kategorii Architektura i Urbanistyka nominowano 7 prac:
| Nr pracy | Komisja | Autor | Promotor |
| 7 | K05L | Damien Beaumont | Prof. dr hab. inż. arch. Tomasz Kozłowski |
| 17 | K02A | Brygida Grygar | dr inż. arch. Jarosław Huebner, prof. PK |
| 19 | K02B | Jakub Czub | dr inż. arch. Marcin Głuchowski |
| 24 | K04B | Magda Brodziak | dr inż. arch. Marcin Gierbienis |
| 25 | K04B | Zlata Hrabtsevich | dr inż. arch. Marcin Gierbienis |
| 29 | K05B | Mateusz Kołacz | dr inż. arch. Przemysław Bigaj |
| 37 | K10A | Robert Machura | dr inż. arch. Anna Taczalska-Ryniak |
NAGRODA I 2000 ZŁ
Autor: mgr inż. arch. Damien Beaumont
Tytuł: CENTRUM ROZWOJU SZTUK
Promotor: Prof. dr hab. inż. arch. Tomasz Kozłowski
Opis: Ideą projektu było stworzenie architektury która wyrasta z dzieła sztuki nurtu suprematyzmu. Wybrany obraz został podniesiony do aksonometrii utrzymując zasadę jednej wysokości dla jednego koloru. W kolejnych etapach, bazując na uzyskanej aksonometrii, zaadaptowano trójwymiarowy obraz pod architekturę-obiekt użyteczności publicznej o funkcji wystawienniczo-edukacyjnej. Projektując starano się tworzyć architekturę zgodną z myślą użycia koloru w architekturze. W efekcie utworzony został projekt w którym użytkownik, dzięki ekscytującej i pobudzającej przestrzeni, uzyskuje niezbędne zewnętrzne bodźce do rozwoju swojej wyobraźni. Projektowany budynek pełni funkcję centrum rozwoju sztuki w której zaprojektowane zostały przestrzenie do rozwoju różnych form sztuk od wizualnych i muzycznych do performatywnych. Dodatkowo przewidziano przestrzeń w której rozwijający się artyści mieliby okazję i możliwości dzielić się swoją sztuką z zainteresowaną widownią. Zaprojektowano sale wystawowe, galerię, przestrzenie do występów, oraz szereg sal taneczno-teatralnych, pracowni plastycznych z niezbędnymi maszynami, pracowniami komputerowymi oraz studiami fotograficznymi, filmowymi i nagraniowymi. Zaprojektowano również szereg przestrzeni rekreacyjnych w których użytkownik miałby możliwość wyciszenia.

WYRÓŻNIENIE I
Autor: mgr inż. arch. Zlata Hrabtsevich
Tytuł: DZIELNIA – KWARTAŁ KULTURY W NOWYM SĄCZU
Promotor: dr inż. arch. Marcin Gierbienis
Opis: Kwartał Kultury to struktura hybrydowa oferująca przestrzeń integracji społecznej, dostęp do różnych form kultury i spędzania czasu. Koncepcja zlokalizowana została w obszarze „Starej Sandecji”, miejsca związanego z historią miasta, dziś zaniedbanego. Wraz ze wprowadzeniem nowej kubatury przeprojektowana została sąsiadująca infrastruktura pieszo-drogowa, jak wprowadzono nową zabudowę mieszkalno-usługową i handlową, dopełniając tworzącą się dzielnicę miejską. Budynek zaprojektowano w formie kwartału z zielonym dziedzińcem wewnętrznym dostępnym poprzez – inspirowane spotykanymi w mieście portalami – przejścia ulokowane w każdym skrzydle funkcjonalnym obiektu. Skrzydła wskazują strefy: biblioteki / mediateki, edukacyjno-coworkingową, sportową oraz sztuki. Modularna konstrukcja sprawia, że kształtowanie funkcji w obiekcie jest elastyczne. Uzupełnienie programu stanowi otwarty plan parteru z ogrodem miejskim w idei bioróżnorodności oraz elementami sensorycznymi i zadaszone miejsca spotkań, handlu, działań artystycznych. Bogata w roślinność przestrzeń stanowi nieodłączny element założenia: przenikanie się architektury i ogrodu jako część hybrydowości. Zróżnicowanie wysokości jest zaś oddźwiękiem sąsiedztwa, odnosząc się do sylwety miasta, jak również przełamując modularność elewacji, nadając obiektowi dynamiki.

WYRÓŻNIENIE II
Autor: mgr inż. arch. Mateusz Kołacz
Tytuł: TRANSGRANICZNE CENTRUM OCHRONY EKOSYSTEMU RZEKI BUG PRZY GRANICY POLSKO-UKRAIŃSKIEJ W MIEJSCOWOŚCI STRZYŻÓW
Promotor: dr inż. arch. Przemysław Bigaj
Opis: Projektowany kompleks obiektów o charakterze edukacyjnym i kontemplacyjnym, związanym z ekosystemem rzeki Bug, ma na celu stworzenie przestrzeni sprzyjającej twórczej myśli oraz międzynarodowej wymianie doświadczeń naukowych i społecznych. Istotnym aspektem założenia są rozwiązania proekologiczne, mające na celu minimalizowanie wpływu obiektów na środowisko, m. in.: arboretum, stacje meteorologiczne i hydrologiczne, obiekty i urządzenia związane z energią odnawialną. Być może właśnie w takich ważnych lokalizacjach, szczególnej ochrony krajobrazu, wznoszenie tego typu obiektów może przyczynić się do zwiększenia świadomości ekologicznej i wsparcia działań ochronnych, w zgodzie z zasadami zrównoważonego rozwoju z poszanowaniem dla środowiska naturalnego i przyniesie realne korzyści, zarówno lokalnym społecznościom, jak i globalnej ochronie środowiska. Badania dotyczą roli rzeki jako bariery, ale i łącznika między państwami. Autor proponuje rozwiązania w postaci mostów i galerii, które podkreślą różnorodność kulturową i regionalne więzi, nie rezygnując z granic.

WYRÓŻNIENIE III
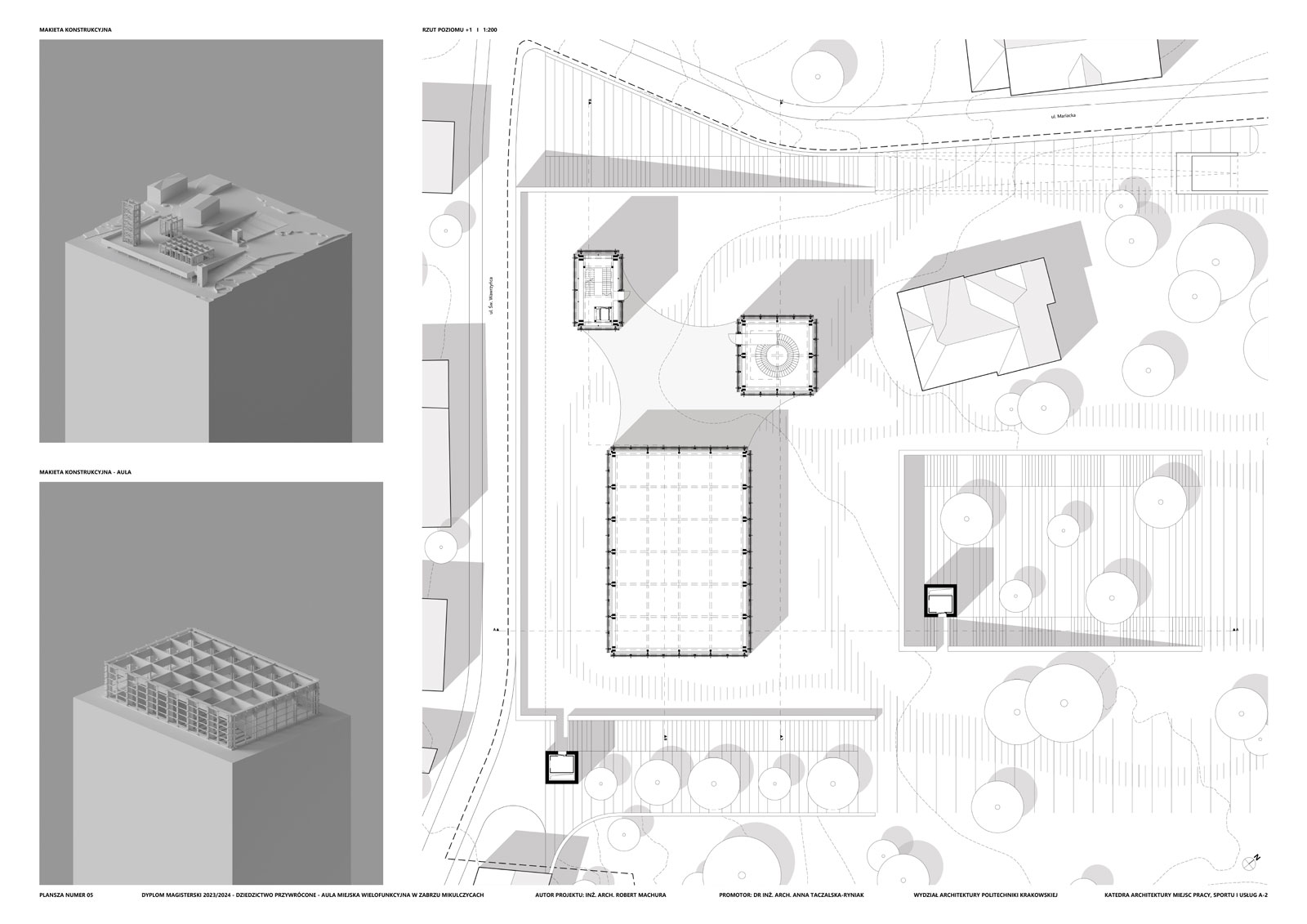
Autor: mgr inż. arch. Robert Machura
Tytuł: DZIEDZICTWO PRZYWRÓCONE – PROJEKT AULI MIEJSKIEJ W OPARCIU O BADANIA DREWNIANEJ ARCHITEKTURY SAKRALNEJ NA TERENIE METROPOLII GÓRNOŚLĄSKO-ZAGŁĘBIOWSKIEJ
Promotor: dr inż. arch. Anna Taczalska-Ryniak
Opis: Niniejsza praca magisterska koncentruje się na analizie drewnianej architektury sakralnej na obszarze Górnośląsko-Zagłębiowskiej Metropolii, ze szczególnym uwzględnieniem obiektów relokowanych. Mimo że region ten kojarzy się przede wszystkim z przemysłem ciężkim, w krajobrazie przemysłowym można odnaleźć cenne przykłady drewnianej architektury pochodzącej z czasów przedindustrialnych. Celem pracy jest wyznaczenie charakterystycznych cech drewnianej architektury sakralnej w regionie oraz określenie typowych elementów kompozycji bryłowej tych obiektów. Opracowane wyniki badań posłużyły jako baza projektowa do stworzenia koncepcji Auli Miejskiej w Zabrzu – zlokalizowanej w miejscu, gdzie ponad sto lat temu stał drewniany kościół. Aula jest reinterpretacją drewnianej architektury sakralnej w kontekście współczesnym, przywraca tym samym lokalnej społeczności jej utracone dziedzictwo. W pracy również zwrócono uwagę na to, jak istotną rolę odgrywa drewniana architektura w budowaniu tożsamości kulturowej regionu, nadając mu wyjątkowy i unikalny charakter.

W kategorii Konserwacja Zabytków nominowano 3 prace:
| Nr pracy | Komisja | Autor | Promotor |
| 5 | K09A | Sebastian Pych | dr inż. arch. Manezha Dost |
| 8 | K11B | Jan Paniak | dr inż. arch. Dominik Przygodzki |
| 13 | K28 | Pola Kopras | dr hab. inż. arch. Jolanta Sroczyńska, prof. PK |
NAGRODA GRAND PRIX
Autor: mgr inż. arch. Jan Paniak
Tytuł: CHÂTEL-ARGENT, PROJEKTOWANIE WSPÓŁCZESNEJ FORMY W OBSZARACH RUIN
Promotor: dr inż. arch. Dominik Przygodzki
Opis: Głównym celem projektu jest stworzenie alternatywnej trasy zwiedzania ruin, która umożliwi bardziej wszechstronne i bezpieczne poruszanie się po tym historycznym miejscu. Dotychczasowe ścieżki obejmowały głównie północną stronę murów. Nowe rozwiązanie zakłada wprowadzenie dodatkowych ciągów komunikacyjnych, które będą harmonijnie wkomponowane w otaczający teren, jednocześnie minimalizując wpływ na istniejącą strukturę ruin. Kluczowym elementem projektu jest pasaż, który zostanie przymocowany do najbardziej stromej części skały, na której znajdują się ruiny. Dzięki temu turyści oraz zwiedzający będą mogli bezpiecznie odkrywać ruiny z nowych, wcześniej niedostępnych punktów widokowych. Projektowany pasaż nie tylko ułatwi poruszanie się po terenie, ale także wzbogaci doświadczenie zwiedzających, oferując im nowe perspektywy i widoki. Pasaż, będący centralnym elementem obiektu, jest konstrukcją otwartą, bez drzwi i innych zamknięć. Jego forma jest nieregularna, co dodaje mu wyrazu oraz estetyki. Obiekt zostanie także wzbogacony o sieć schodów i platform widokowych. Schody i platformy umożliwią lepszy dostęp do różnych części obiektu oraz zapewnią dodatkowe punkty widokowe, z których odwiedzający będą mogli podziwiać rozległe panoramy i detale ruin z nowych, interesujących perspektyw.

WYRÓŻNIENIE
Autor: mgr inż. arch. Sebastian Pych
Tytuł: STAŁOŚĆ. ULOTNOŚĆ. ILUZJA. KONTUR FORMY – FORUM DIALOGU W DAWNEJ FABRYCE ROBERTA BIEDERMANNA W ŁODZI
Promotor: dr inż. arch. Manezha Dost
Opis: Projekt który zakłada stworzenie przestrzeni dialogu dla społeczności o różnych tożsamościach. Miejsce to ma sprzyjać tworzeniu się konsensusu i zrozumienia w konfrontacji Ja-Ty-My. Symboliczne stworzenie architektonicznej formy ma także odniesienie do tego w jaki sposób kształtować architektoniczną przestrzeń, celem stworzenia consensusu. Jego szukanie to jedno z głównych założeń projektowych. Podstawą projektu są badania oparte na filozofii dialogu oraz badaniach zachowań społecznych. Projekt opiera się na trzech filozofiach, wyciągając z nich to co najbardziej istotne w definicyjnej postaci dialogu. Projekt jest też pewnego rodzaju próbą zrozumienia idei zanikania i rozpadu architektury, poszukiwania jej formy i w końcu jej iluzorycznego postrzegania w czasoprzestrzeni nieokreślonej – nawiązując w bezpośredni sposób do konceptu consensusu. Patrząc na formę założenia projektu, zaczynając od zachodu, można spostrzec architekturę istniejącą, architekturę pozorującą, kończąc na architekturze pozornej, która niejako rozmywa się w przestrzeni. Założeniem Forum jest symboliczna zmiana perspektywy poprzez okna. Najpierw widok na założenie, później kolejno z wieży na horyzont, linearny – niczym nie zmącony, skupiony w soczewce czy widok z kulistych kapsuł, z których doświadczamy przesiania idei i w końcu docieramy do upragnionego konsensusu.

W kategorii Architektura Krajobrazu nominowano 3 prace:
| Nr pracy | Komisja | Autor | Promotor |
| 3 | K2 | Martyna Młotek | prof. dr hab. inż. arch. Zbigniew Myczkowski |
| 5 | K3 | Tomasz Jaróg | dr hab. inż. arch. Katarzyna Hodor, prof. PK |
| 7 | K4 | Marta Szar-Wojasińska | prof. dr hab. inż. arch. Agata Zachariasz |
NAGRODA I 2000 ZŁ
Autor: mgr inż. arch. Tomasz Jaróg
Tytuł: POŁĄCZYĆ NA NOWO. PROJEKT PARKU RZECZNEGO PRĄDNIKA
Promotor: dr hab. inż. arch. Katarzyna Hodor, prof. PK
Opis: Projekt „Połączyć na nowo. Projekt Parku Rzecznego Prądnika” zakłada rewitalizację Doliny Prądnika w Krakowie, skupiając się na przywróceniu ciągłości ekologicznej oraz połączeniu części naturalnej użytku ekologicznego z historycznym założeniem parkowym im. Tadeusza Kościuszki. Jednym z kluczowych założeń jest rozszerzenie sieci ciągów ekologicznych, co ma na celu lepszą ochronę bioróżnorodności oraz wsparcie funkcji przyrodniczych tego obszaru. Główna idea projektu opiera się na integracji trzech kluczowych relacji: człowiek-natura, natura-kultura oraz kultura-człowiek. Dzięki temu projekt promuje harmonijną współpracę między tymi elementami, wspierając zrównoważony rozwój przestrzeni miejskiej. Wszystkie interwencje zostały zaplanowane w taki sposób, aby pozostawić jak najmniejszy ślad węglowy, wykorzystując wyłącznie naturalne materiały – w hołdzie naturze. Istotnym elementem projektu jest obserwatorium przyrodnicze wykonane z technologii ubijanej ziemi. Obiekt pełni dwie funkcje: obserwacyjną oraz edukacyjną, zwiększając świadomość ekologiczną. Dodatkowo, jego powierzchnia została zaprojektowana tak, aby była pozostawiona procesom biologicznym, co symbolizuje ścisły związek z naturą.

WYRÓŻNIENIE
Autor: mgr inż. arch. Martyna Młotek
Tytuł: PARK NA GÓRZE BORKOWSKIEJ”. PROJEKT REWALORYZACJI ZAŁOŻENIA PARKOWO-DWORSKIEGO RODZINY ZIOBROWSKICH W BORKU FAŁĘCKIM
Promotor: prof. dr hab. inż. arch. Zbigniew Myczkowski
Opis: To wyjątkowe miejsce posiada wysokie walory historyczne, kompozycyjne i przestrzenne. W jego obszarze zlokalizowany jest budynek dworu, datowany na 1890 rok, który aktualnie został zmodernizowany przez obecnych właścicieli. Głównym celem pracy jest opracowanie projekt rewaloryzacji całości założenia parkowo-dworskiego, przywrócenie jego stanu z okresu świetności, który przypada na okres przedwojenny oraz zniwelowanie szkód, które są wynikiem działalności Instytutu Hodowli i Aklimatyzacji Roślin, prowadzonej przez wiele lat na tym terenie. W ramach projektu przedstawiono propozycje rozwiązań mających na celu przywrócenia założeniu parkowo-dworskiemu jego dawnych wartości oraz stworzeniu ciekawego, atrakcyjnego i zacisznego miejsca, dla przyszłych użytkowników tego terenu. Przeprowadzona rewaloryzacja otwiera teren dla turystów oraz użytkowników Ośrodka Edukacji i Turystyki, który ma zostać zlokalizowany w jednym z budynków. Dla zabytkowej części parku projektuje się układ ścieżek na historycznym zarysie kompozycji (aktualnie zatartych przez samosiewy i zaniedbania) oraz na podstawie faz historyczno-kompozycyjnych. Projekt uwzględnia również adaptacje starych szklarni poprzemysłowych pod kawiarnię oraz obrośnięte pnączem szkielety szklarni stanowiące ciekawe, wielkie i nieoczywiste rzeźby ogrodowe.
W kategorii Urbanistyka i Planowanie Przestrzenne nominowano 2 prace:
| Nr pracy | Komisja | Autor | Promotor |
| 3 | K06A | Klaudia Krajewska | dr inż. arch. Piotr Langer |
| 4 | K08A | Krzysztof Jarczok | prof. dr hab. inż. arch. Mateusz Gyurkovich |
NAGRODA I 2000 ZŁ
Autor: mgr inż. arch. Krzysztof Jarczok
Tytuł: PROJEKT REWITALIZACJI FRAGMENTU MIASTA MYSŁOWICE
Promotor: prof. dr hab. inż. arch. Mateusz Gyurkovich
Opis: Główne hasło projektu brzmi ponad granicami i nawiązuje do szeregu zjawisk przestrzennych i społecznych składających się na specyficzną sytuację dzielnicy Stare Mysłowice. Projekt rewitalizacji przedmiotowego obszaru zakłada niwelowanie granic przestrzennych poprzez: zagospodarowanie trenów nieczynnej bocznicy kolejowej; zwiększenie liczby i przepustowości połączeń pieszych, rowerowych i kolejowych z sąsiednimi obszarami; przebudowę i uzupełnienie istniejącej tkanki zabudowy mieszkaniowej; adaptację pustostanów na obiekty użyteczności publicznej; reorganizację przestrzeni publicznych oraz tworzenie nowych; zagospodarowanie wnętrz kwartałów zabudowy mieszkaniowej; reorganizację ruchu nastawioną na izolację ruchu kołowego od pieszego i rowerowego. Zmiany wprowadzane w przestrzeni są jednocześnie działaniami mającymi na celu aktywizację mieszkańców oraz poprawę ich standardu życia. Zadaniem projektu jest również integracja lokalnej społeczności oraz zmniejszanie różnic społecznych pomiędzy mieszkańcami Starego Miasta i otaczających je dzielnic, również z miast sąsiednich.

W kategorii Nagroda Specjalna Odnawialne Źródła Energii nominowano 1 prace:
| Nr pracy | Komisja | Autor | Promotor |
| 25 | K04B | Hrabsevich Zlata | Gierbienis M. |
NAGRODA I 2000 ZŁ
Autor: mgr inż. arch. Zlata Hrabtsevich
Tytuł: DZIELNIA – KWARTAŁ KULTURY W NOWYM SĄCZU
Promotor: dr inż. arch. Marcin Gierbienis
Opis: Kwartał Kultury to struktura hybrydowa oferująca przestrzeń integracji społecznej, dostęp do różnych form kultury i spędzania czasu. Koncepcja zlokalizowana została w obszarze „Starej Sandecji”, miejsca związanego z historią miasta, dziś zaniedbanego. Wraz ze wprowadzeniem nowej kubatury przeprojektowana została sąsiadująca infrastruktura pieszo-drogowa, jak wprowadzono nową zabudowę mieszkalno-usługową i handlową, dopełniając tworzącą się dzielnicę miejską. Budynek zaprojektowano w formie kwartału z zielonym dziedzińcem wewnętrznym dostępnym poprzez – inspirowane spotykanymi w mieście portalami – przejścia ulokowane w każdym skrzydle funkcjonalnym obiektu. Skrzydła wskazują strefy: biblioteki / mediateki, edukacyjno-coworkingową, sportową oraz sztuki. Modularna konstrukcja sprawia, że kształtowanie funkcji w obiekcie jest elastyczne. Uzupełnienie programu stanowi otwarty plan parteru z ogrodem miejskim w idei bioróżnorodności oraz elementami sensorycznymi i zadaszone miejsca spotkań, handlu, działań artystycznych. Bogata w roślinność przestrzeń stanowi nieodłączny element założenia: przenikanie się architektury i ogrodu jako część hybrydowości. Zróżnicowanie wysokości jest zaś oddźwiękiem sąsiedztwa, odnosząc się do sylwety miasta, jak również przełamując modularność elewacji, nadając obiektowi dynamiki.

NAGRODA ODDZIAŁU KRAKOWSKIEGO STOWARZYSZENIA KONSERWATORÓW ZABYTKÓW
Autor: mgr inż. arch. Jan Paniak
Tytuł: CHÂTEL-ARGENT, PROJEKTOWANIE WSPÓŁCZESNEJ FORMY W OBSZARACH RUIN
Promotor: dr inż. arch. Dominik Przygodzki
Nagroda, którą wręczyła Prezes Oddziału Krakowskiego SKZ Prof. dr hab. inż. arch. Dominika Kuśnierz-Krupa ma na celu popularyzację dziedzictwa kulturowego, jego ochrony oraz właściwych praktyk architektonicznych związanych z jego konserwacja i adaptacją.
