SUKCES ABSOLWENTKI WA PK JULII MYTNIK

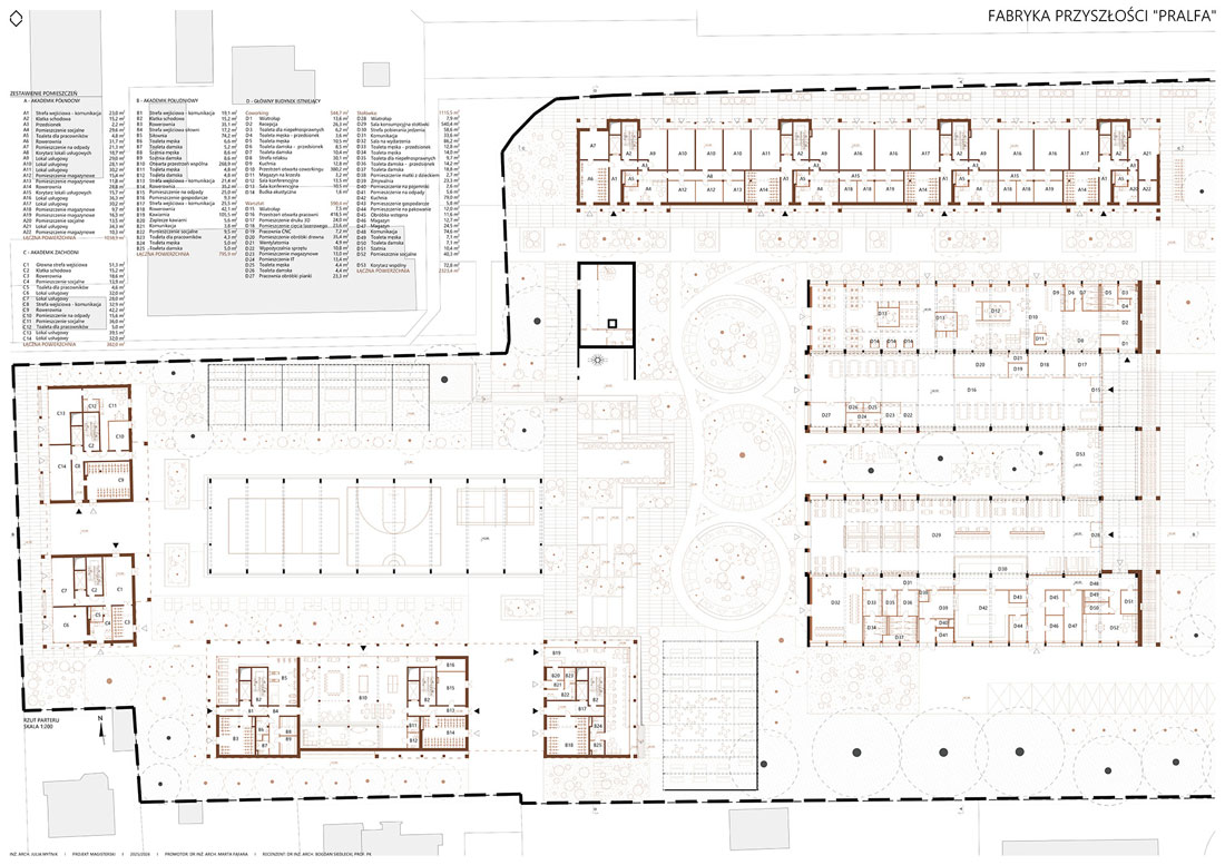
Praca dyplomowa Pani Julii Mytnik pt. „Pralfa. Fabryka przyszłości”, wykonana pod opieką dr inż. arch. Marty Fąfary, zdobyła 3. miejsce w międzynarodowym konkursie Buildner Re-Form oraz nagrodę specjalną Buildner Sustainability Award. Projekt ten to przemyślana i wrażliwa opowieść o przywracaniu życia miejscom zapomnianym — poprzez rewitalizację, szacunek dla istniejącej tkanki oraz świadome wykorzystanie zasobów. Kluczowym aspektem pracy jest odpowiedzialne podejście do środowiska:

• zachowanie budynków w dobrym stanie i ich adaptacja do nowych funkcji

• ponowne wykorzystanie materiałów z rozbiórek (m.in. w elewacjach, posadzkach i mieszankach betonowych)

• precyzyjne obliczenia materiałowe w oparciu o model BIM

• zastosowanie analizy LCA, potwierdzającej trafność przyjętych rozwiązań

Dzięki temu projekt zyskuje wymiar nie tylko etyczny, ale także ekonomiczny i środowiskowy, pozostając jednocześnie głęboko zakorzeniony w kontekście miejsca i jego historii. Jury konkursu zwróciło uwagę na wysoką jakość prezentacji projektu — szczególnie umiejętne oddanie atmosfery oraz wrażliwość materiałową. Wizualizacje skutecznie ukazują relacje między istniejącą strukturą przemysłową a nowymi interwencjami architektonicznymi, operując światłem, fakturą i zielenią. Dużym atutem są także diagramy cyklu życia i gospodarki cyrkularnej, które w klarowny i przekonujący sposób przedstawiają strategie zrównoważonego projektowania.

Serdecznie gratulujemy i życzymy dalszych sukcesów!

Więcej informacji na stronie: https://architecturecompetitions.com/reform2