15 grudnia 2025 roku poznaliśmy wyniki konkursu Dyplom Roku Wydziału Architektury 2025 organizowanego przez Wydział Architektury Politechniki Krakowskiej. Nagrody zostały przyznane najlepszym pracom dyplomowym inżynierskim i magisterskim obronionym w 2025 roku. Uroczystość ogłoszenia wyników i otwarcia pokonkursowej wystawy odbyła się w Galerii GIL, Czytelnia/sala 102 na I piętrze (ul. Warszawska 24, Kampus Politechniki Krakowskiej).

W kategorii Architektura i Urbanistyka nominacje otrzymały prace:
Autor: inż. arch. Daniel Nowak
Promotor: dr hab. inż. arch. Patrycja Haupt, prof. PK
Tytuł: WIEŻA MIESZKALNA Z CLT W MIEŚCIE OXFORD
,,THE CLT RESIDENTIAL TOWER IN THE CITY OF OXFORD”
Projekt przedstawia nowoczesny wieżowiec wykonany w technologii CLT, usytuowany w samym centrum Oxfordu. Główną ideą było stworzenie obiektu, który nie tylko odpowiada na współczesne wyzwania środowiskowe, lecz także w pełni szanuje kulturowy kontekst miejsca. To architektura, która świadomie sięga po historię i tożsamość przestrzeni miejskiej, unikając abstrakcyjnej nowoczesności. Wieżowiec zaprojektowano jako budynek pasywny, minimalizujący zużycie energii i zasobów zarówno podczas budowy, jak i eksploatacji, co stanowi przykład zrównoważonego podejścia do architektury. Drugim filarem koncepcji jest ,,neohistoryczny” styl architektoniczny, będący kontrpropozycją wobec chłodnej nowoczesności. Forma wieżowca nawiązuje do rzutów gotyckich katedr angielskich, a bryła i proporcje odzwierciedlają charakterystyczne, strzeliste wieże Oxfordu. Ciepły, piaskowy kolor drewna harmonizuje z lokalnym piaskowcem, dominującym w miejskiej zabudowie. Budynek nie tylko wpisuje się w otoczenie, lecz zdaje się z niego wyrastać – tworząc architekturę „miejscowo zakorzenioną”, unikalną dla tego miasta.
Autor: inż. arch. Kinga Zyznar
Promotor: dr inż. arch. Julian Franta
Tytuł: REFUGIUM KONTEMPLACJI. KONCEPCJA ARCHITEKTONICZNA SANKTUARIUM KONTEMPLACJI I DZIEDZICTWA LOKALNEGO W LESKU
REFUGIUM OF CONTEMPLATION: AN ARCHITECTURAL DESIGN FOR A SANCTUARY OF REFLECTION AND LOCAL HERITAGE IN LESKO
Projekt Refugium Kontemplacji to architektoniczna odpowiedź na współczesne zjawiska, które coraz mocniej determinują codzienność człowieka. Architektura proponowanego obiektu, osadzonego w sercu Bieszczad, jest próbą stworzenia miejsca, które stanie się przeciwwagą dla współczesnego pędu – sanktuarium refleksji, przestrzenią oddechu i duchowego oczyszczenia. Architektura nie pełni tu wyłącznie funkcji użytkowej – staje się przewodnikiem. Prowadzi odbiorcę przez kolejne etapy doświadczenia: od poznania i edukacji, przez immersję i refleksję, aż po kontemplację. Inspiracją dla formy i idei stały się Bieszczady – region wpisany w zbiorową świadomość jako synonim wolności, dzikości i autentycznego resetu. Projekt odwołuje się do tych wartości nie tylko symbolicznie, ale i formalnie: budynek częściowo wtapia się w teren, jego bryła jest masywna, monolityczna, a faktura betonu z odciśniętymi deskami bukowymi przywołuje obraz okolicznych lasów i lokalnych technik budowlanych. Obiekt nie dominuje nad przyrodą – raczej stara się stać jej dyskretnym towarzyszem, wrażliwie wpisując się w kontekst.
Autor: inż. arch. Joanna Nowak
Promotor: dr inż. arch. Marta Fąfara
Tytuł: PRZEDSZKOLE MONTESSORI W WIELICZCE
MONTESSORI KINDERGARTEN IN WIELICZKA
Nowoczesne i ekologiczne przedszkole w Wieliczce to projekt, którego celem jest stworzenie bezpiecznej, funkcjonalnej i inspirującej przestrzeni dla dzieci. Obiekt, zaprojektowany w duchu zrównoważonego rozwoju i pedagogiki Montessori, ma sprzyjać zdobywaniu doświadczeń poprzez bliski kontakt z naturą. Budynek zaprojektowano w technologii CLT, z naturalnych materiałów, w harmonii z otaczającym środowiskiem. Parterowa forma, fragmentarycznie piętrowa, pozbawiona barier architektonicznych, odpowiada na potrzeby zarówno dzieci, jak i osób z ograniczoną mobilnością. Kompozycja oparta na modułowych bryłach zapewnia każdej sali bezpośredni dostęp do ogrodu i placu zabaw. Duże przeszklenia wprowadzają naturalne światło, tworząc jasne i przyjazne wnętrza. Otoczenie wzbogacają ogrody dydaktyczne, grządki warzywne, sad i przestrzenie do nauki poprzez doświadczenie, dzięki czemu dzieci mogą odkrywać świat w rytmie natury. Program funkcjonalny obejmuje sale dydaktyczne, przestrzenie tematyczne, jadalnię oraz kawiarnię. Dodatkowo powstała niezależna przestrzeń komercyjna umożliwiająca organizację wydarzeń dla lokalnej społeczności.
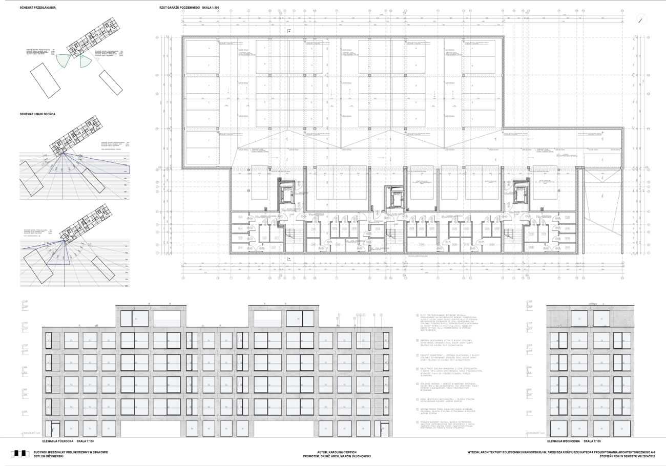
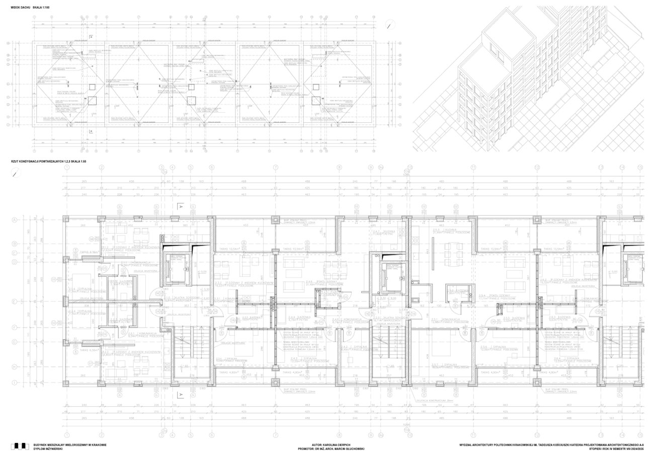
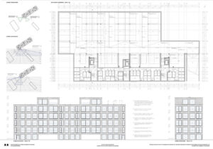
Autor: inż. arch. Karolina Cierpich
Promotor: dr inż. arch. Marcin Głuchowski
Tytuł: BUDYNEK MIESZKALNY WIELORODZINNY W KRAKOWIE
MULTI-FAMILY RESIDENTIAL BUILDING IN KRAKÓW
Głównym założeniem pracy było stworzenie budynku mieszkalnego o wysokich walorach funkcjonalnych i estetycznych uzupełniającego zabudowę tej dzielnicy Krakowa. Projektowany obiekt wpisuje się w istniejącą strukturę urbanistyczną, domykając pierzeję w rejonie Placu Na Stawach. Budynek kontynuuje skalę i charakter sąsiednich kamienic, respektując linię zabudowy, wysokość oraz proporcje elewacji, dzięki czemu staje się harmonijnym przedłużeniem istniejącej tkanki miejskiej. Takie podejście zapewnia spójność wizualną i funkcjonalną przestrzeni, podkreślając znaczenie placu jako ważnego węzła miejskiego. Bryła budynku została zaprojektowana jako prostopadłościan podzielony wertykalnie na pięć modułów, spośród których trzy niższe tworzą główną bazę budynku, a dwa wyższe tworzą akcent i nadają dynamizm formie. W parterze zaprojektowano ogólnodostępne lokale usługowe, otwarte na plac, co sprzyja aktywizacji przestrzeni miejskiej oraz integracji mieszkańców i użytkowników. Jako materiał elewacyjny wybrano beton architektoniczny w kolorze szarym w postaci płyt elewacyjnych, które podkreślają prostotę bryły oraz nadają jej eleganckiego charakteru.
W kategorii Architektura i Urbanistyka wyróżnienia otrzymały prace:
Autor: inż. arch. Alicja Elliot
Promotor: dr inż. arch. Wojciech Świątek
Tytuł: EVERGREEN – CENTRUM AKTYWNOŚCI OSÓB STARSZYCH W KRAKOWIE
EVERGREEN – ELDERLY DAY CENTRE
Projekt obejmuje koncepcję dziennego ośrodka dla osób starszych wraz z otoczeniem. Ma on służyć jako przyjazna, integracyjna przestrzeń, która wspiera osoby starsze, jak i szerszą społeczność. Celem projektu jest wkomponowanie budynku w istniejącą tkankę miejską, poprzez stworzenie nowych przestrzeni publicznych. W ramach projektu przestrzenie publiczne po północnej stronie działki zostały przeprojektowane i wyposażone w nowe elementy małej architektury. Droga dojazdowa, została przekształcona w ulicę typu woonerf, z naciskiem na dostęp dla pieszych. Zespół budynków tworzy najwyższa dominująca bryła, która służy jako punkt orientacyjny centrum. Bryły tworzą zewnętrzny dziedziniec i wiele zacienionych przestrzeni zewnętrznych, które mają umożliwić aktywne wykorzystanie frontu budynku do celowych działań. W centrum stworzono program funkcjonowania, który obejmuje: przestrzenie wypoczynkowe, przestrzenie aktywności i przestrzenie edukacyjne dla osób starszych. Elastyczność pomieszczeń i sala wielofunkcyjna umożliwiają organizowanie wydarzeń i spotkań dla społeczności.
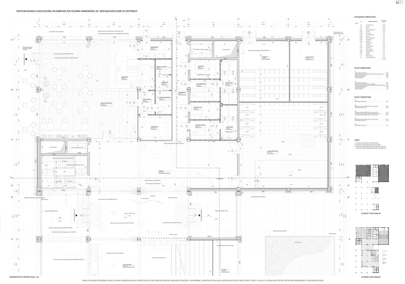
Autor: inż. arch. Agnieszka Ruchała
Promotor: dr inż. arch. Bartosz Dendura
Tytuł: CENTRUM EDUKACJI EKOLOGICZNEJ NA KAMPUSIE POLITECHNIKI KRAKOWSKIEJ IM. TADEUSZA KOŚCIUSZKI W CZYŻYNACH
ENVIRONMENTAL EDUCATION CENTER ON THE CAMPUS OF CRACOW UNIVERSITY OF TECHNOLOGY IN CZYŻYNY
Projekt jest odpowiedzią na potrzebę tworzenia architektury, która w obliczu narastających zmian klimatycznych powinna służyć nie tylko jako tło dla szerzenia wiedzy, ale sama też winna stać się jej narzędziem jako aktywne medium edukacyjne. Bazując na przeprowadzonych analizach, obiekt wpisano w istniejący kontekst Kampusu PK z poszanowaniem dla przepisów prawa miejscowego, relacji przestrzennych, komunikacyjnych oraz zieleni. Modularna struktura budynku składająca się z konstrukcji słupowej i trzonów komunikacyjnych pozwala na elastyczne kształtowanie przestrzeni i pomieszczeń, umożliwiając dostosowywanie ich do zmian w zależności od zmieniających się potrzeb. W budynku zastosowano szereg rozwiązań ekologicznych, m. in. zielone dachy z łąką kwietną i pasieką, panele fotowoltaiczne, konstrukcję z drewna klejonego, czy system pozyskiwania wody z mgły wraz z jej retencją i recyklingiem. Działania te mają na celu zminimalizować negatywny wpływ na klimat, stanowiąc jednocześnie przestrzeń doświadczalną, dzięki której ekologia staje się codzienną praktyką, a nie jedynie abstrakcyjnym pojęciem.
W kategorii Architektura i Urbanistyka nagrodę otrzymała praca:
Autor: inż. arch. Piotr Mazur
Promotor: dr inż. arch. Piotr Broniewicz
Tytuł: PLOMBA MIEJSKA: MIESZKANIE WEWNĄTRZ KWARTAŁU
URBAN INFILL: LIVING INSIDE A CITY BLOCK
Projektowany budynek zlokalizowany jest w centrum Krakowa, na działce wewnętrznej kwartału przy ul. Garbarskiej. Inwestycja stanowi dopełnienie zabudowy, wykorzystując potencjał lokalizacji w centrum miasta oraz wpisując się w strategię dogęszczania miejskich struktur, przeciwdziałając zjawisku rozlewania się miasta. W bezpośrednim sąsiedztwie działki znajdują się oficyny oraz hotel, którego wysokość stała się punktem odniesienia dla ukształtowania projektowanej bryły. Budynek tworzy własną, prostą i zwartą formę w postaci wydłużonego prostopadłościanu. Jego wysokość została ukształtowana w formie poziomej ramy, która porządkuje przestrzeń wewnętrzną kwartału. Elewacje wykonane są z prefabrykowanych płyt betonowych barwionych w masie. Rytmiczne loggie z fornirowanym wykończeniem wewnętrznym porządkują fasadę. Parter budynku został przeznaczony na usługi, powyżej znajdują się trzy kondygnacje mieszkalne z dziewięcioma lokalami. Zieleń towarzysząca budynkowi została zaplanowana jako zintegrowany element projektu – w postaci roślinności w obrębie działki oraz ogrodu intensywnego na dachu.
W kategorii Konserwacja Zabytków wyróżnienie otrzymała praca:
Autor: inż. arch. Maja Ciurkot
Promotor: dr inż. arch. Łukasz Stożek, prof. PK
Tytuł: PRZEBUDOWA I ROZBUDOWA BUDYNKU XVIII WIECZNEJ KAMIENICY W MYŚLENICACH.
RECONSTRUCTION AND EXPANSION OF AN 18TH CENTURY TENEMENT HOUSE IN MYŚLENICE.
Praca dyplomowa dotyczy rozbudowy i przebudowy zabytkowej Kamienicy Obońskich, położonej przy Rynku w Myślenicach. Obiekt ten, wzniesiony w XVIII wieku jako pierwsza murowana kamienica w mieście, stanowi istotny element dziedzictwa kulturowego a także ważny punkt tożsamości lokalnej społeczności. Projekt zakłada poszanowanie wartości historycznych obiektu oraz stworzenie nowoczesnej przestrzeni przeznaczonej na cele kulturalne. Główne założenia projektowe obejmują zachowanie kluczowych funkcji użytkowych na parterze i poddaszu, przy jednoczesnej adaptacji pozostałych przestrzeni do nowych potrzeb: organizacji wydarzeń kulturalnych, warsztatów, spotkań i działań artystycznych. Projekt przewiduje rozbudowę budynku o dwie dwukondygnacyjne oficyny mieszczące sale wystawowe, pracownie artystyczne, salę konferencyjną i czytelnię z tarasem. Przestrzeń dziedzińca utworzonego pomiędzy nowo zaprojektowanymi budynkami zostanie przykryta lekką konstrukcją z metalu i szkła. Całość utrzymana jest w harmonii z historycznym charakterem miejsca, przy jednoczesnym wprowadzeniu współczesnych form architektonicznych.
W kategorii Architektura Krajobrazu nominację otrzymała praca:
Autor: inż. arch. Anna Furgała
Promotor: prof. dr hab. inż. arch. Zbigniew Myczkowski
Tytuł: PALLAZO IN FORTEZZA- ODKRYJ ZAPOMNIANE. PROJEKT REWALORYZACJI FRAGMENTU ZESPOŁU DWORSKO-PARKOWEGO W NOWYM SIOLE
PALLAZO IN FORTEZZA – DISCOVER THE FORGOTTEN. A PROJECT OF REVALORIZATION OF A FRAGMENT OF THE MANOR AND PARK COMPLEX IN NOWE SIOŁO
Celem pracy dyplomowej jest przedstawienie projektu rewaloryzacji i zagospodarowania terenów obecnie popadającego w ruinę założenia dworsko-parkowego w Nowym Siole. Przeprowadzano kompleksową analizę historyczną oraz pozostałości dawnych fortyfikacji bastionowych, które są istotnym elementem dziedzictwa kulturowego. Wyznaczano wytyczne konserwatorskie, a następnie stworzono projekt zagospodarowania terenów dla badanego obszaru, który ma na celu podkreślenie kulturowych i historycznych wartości badanego obszaru oraz nadanie mu funkcji opowiadających współczesnym potrzebom użytkowników. Zaproponowano wprowadzenie nowych funkcji, które ma przekształcić obecny obszar w centrum rekreacyjno-wypoczynkowej dla lokalnej społeczności. Projekt łączy w sobie dawny układ ścieżek oraz wprowadza nowe ciągi komunikacyjne pozwalające na dogodne zwiedzanie oraz poznanie wartości historycznych i przyrodniczych założenia. Zaprojektowano nowe elementy kompozycyjne, rabaty bylinowe oraz dodano nowe wyposażenie parkowe, które harmonijnie wpisują się w historyczno-kulturowy charakter założenia.
W kategorii Architektura Krajobrazu wyróżnienie otrzymała praca:
Autor: inż. arch. Wiktoria Kłosowska
Promotor: dr hab. inż. arch. Anna Staniewska, prof. PK
Tytuł: NOWY WIŚNICKI RYNEK. REWALORYZACJA RYNKU W NOWYM WIŚNICZU
NEW WIŚNICZ MARKET. REVALORIZATION OF THE MAIN MARKET SQUARE IN NOWY WIŚNICZ
Teren barokowego założenia należy do zespołu urbanistyczno-krajobrazowego uznanego za Pomnik Historii ze względu na swoje walory historyczne, artystyczne, naukowe oraz przyrodnicze. Praca ma na celu rewaloryzację rynku w Nowym Wiśniczu jako miejsca wielofunkcyjnego, estetycznego, nawiązującego do czasów historycznych, ale także będącego współcześnie dopasowanym do potrzeb użytkowników, którymi są zarówno mieszkańcy, jak i turyści. Główna koncepcja obejmuje uporządkowane i funkcjonalne alejki nawiązujące do siatkowego układu centrum Wiśnicza, zadaszony plac targowy, kreatywną strefę zabaw, partery ogrodowe wypełnione bylinami, rośliny zadarniające tworzące strefy bez koszenia, społeczne rabaty integrujące mieszkańców oraz wprowadzenie zieleni w przestrzenie pomiędzy ciągami ruchu pieszego, ulicami oraz parkingami. Planując zagospodarowanie terenu uwzględniono również organizowane tam wydarzenia kulturalne takie jak jarmarki oraz uroczyste obchody nadania praw miejskich. Zachowano wolną przestrzeń w północno-wschodniej części rynku, pozostawiając tam trawnik oraz projektując funkcjonalne alejki.
W kategorii Architektura Krajobrazu nagrodę otrzymała praca:
Autor: inż. arch. Maja Jucha
Promotor: dr hab. inż. arch. Anna Staniewska, prof. PK
Tytuł: ZIELEŃ PLACÓWEK LECZNICZYCH – REWITALIZACJA OGRODU WOKÓŁ OŚRODKA LECZNICZO-OPIEKUŃCZEGO W GLIWICACH
GREEN SPACES IN HEALTHCARE FACILITIES – REVITALIZATION OF THE GARDEN SURROUNDING THE MEDICAL AND CARE CENTER IN GLIWICE
Niniejsza praca przedstawia projekt zagospodarowania terenu wokół placówki medycznej ukierunkowanej na opiekę nad osobami w podeszłym wieku. Nadrzędnym celem opracowania było stworzenie przestrzeni terapeutycznej, która odpowiada na potrzeby różnych grup użytkowników, w tym pacjentów, osób z niepełnosprawnościami, pracowników placówki oraz lokalnej społeczności. Kluczowym punktem projektu jest harmonijne połączenie nowoczesnych rozwiązań z istniejącymi historycznymi elementami, takimi jak Kaplica Grobowa Gallich oraz budynek Domu Opieki. W zgodzie z tym zamysłem, w centralnej części ogrodu, na osi głównej budynku ośrodka leczniczo-opiekuńczego, zaprojektowano altanę na rzucie ośmiokąta. Uzupełnieniem tej kompozycji jest ceglany plac z elementem wodnym w postaci poidełka dla ptaków, zlokalizowany przed budynkiem Domu Opieki. Plac, uzupełniony o miejsca do siedzenia i otulony bogato kwitnącymi rabatami, pełni funkcję reprezentacyjną opracowywanego terenu. Wspomniane wyżej elementy połączono meandrującą ścieżką, która ma na celu zespolić całość założenia.
W kategorii Architektura Krajobrazu – studia magisterskie wyróżnienia otrzymały prace:
Autor: mgr inż. arch. Sylwia Madej oraz mgr inż. arch. Izabela Motyka
Promotor: prof. dr hab inż. arch. Agata Zachariasz
Autor: mgr inż. arch. Daria Guzik oraz mgr inż. arch. Dominka Hyła
Promotor: dr hab inż. arch. Jadwiga Środulska-Wielgus, prof. PK
W kategorii Architektura Krajobrazu – studia magisterskie nagrodę otrzymała praca:
Autor: mgr inż. arch. Angelika Duda
Promotor: dr hab inż. arch. Katarzyna Łakomy, prof. PK
W kategorii Nagroda specjalna Dziekana Wydziału Architektury PK nagrodę otrzymała praca:
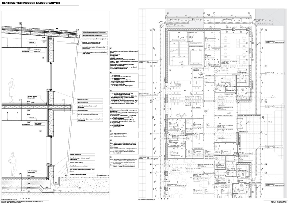
Autor: inż. arch. Maja Sobczak
Promotor: dr inż. arch. Krzysztof Barnaś
Tytuł: CENTRUM TECHNOLOGII EKOLOGICZNYCH
ECOLOGICAL TECHNOLOGIES CENTER
Praca dyplomowa zawiera projekt proekologicznego centrum technologii oraz produkcji energii odnawialnych. Głównym założeniem projektu jest jego ekologiczność i zmniejszenie wpływu na środowisko. Te założenia determinują zarówno zwartość bryły, jak i technologię konstrukcji oraz elementy wykończeniowe. Projekt obejmuje stworzenie sztucznej wyspy z dostępnej przy pomocy mostów oraz dróg dojazdowych. Zaprojektowano także małą architekturę, oraz infrastrukturę dla pieszych i osób niepełnosprawnych. Technologia konstrukcji budynku oraz użyte materiały minimalizują ślad ekologiczny budynku. Budynek jest w całości samowystarczalny energetycznie. Energia pozyskiwana jest z ekologicznych źródeł energii. Dzięki zastosowaniu przegród o wysokim oporze cieplnym zmniejszony zostało zmniejszone zużycie energii w ciągu życia budynku. Budynek ma także zrobioną analizę Life Cycle Assessment. W analizie ilość dwutlenku węgla wyprodukowana w kontekście całego budynku wynosi 397 CO2e/m2. Pozwala to na zaklasyfikowanie budynku do klasy C w klasyfikacji śladu węglowego budynku.
W kategorii Nagroda Oddziału Krakowskiego Stowarzyszenia Konserwatorów Zabytków nagrodę otrzymała praca:
Autor: inż. arch. Maja Ciurkot
Promotor: dr inż. arch. Łukasz Stożek, prof. PK
Tytuł: Przebudowa i rozbudowa budynku XVIII wiecznej kamienicy w Myślenicach.
Fotorelacja z uroczystości wręczenia nagród i otwarcia wystawy
fot. Jan Zych