Pola Wrońska

Promotor

Dr inż. arch. Zbigniew Wikłacz, prof. PK

Recenzent

Dr inż. arch. Grzegorz Schnotale

Tytuł pracy

Piscina Mirabilis – rewitalizacja i rozbudowa rzymskiej cysterny w Bacoli

Jednostka dyplomująca

Katedra Historii Architektury i Konserwacji Zabytków A-1

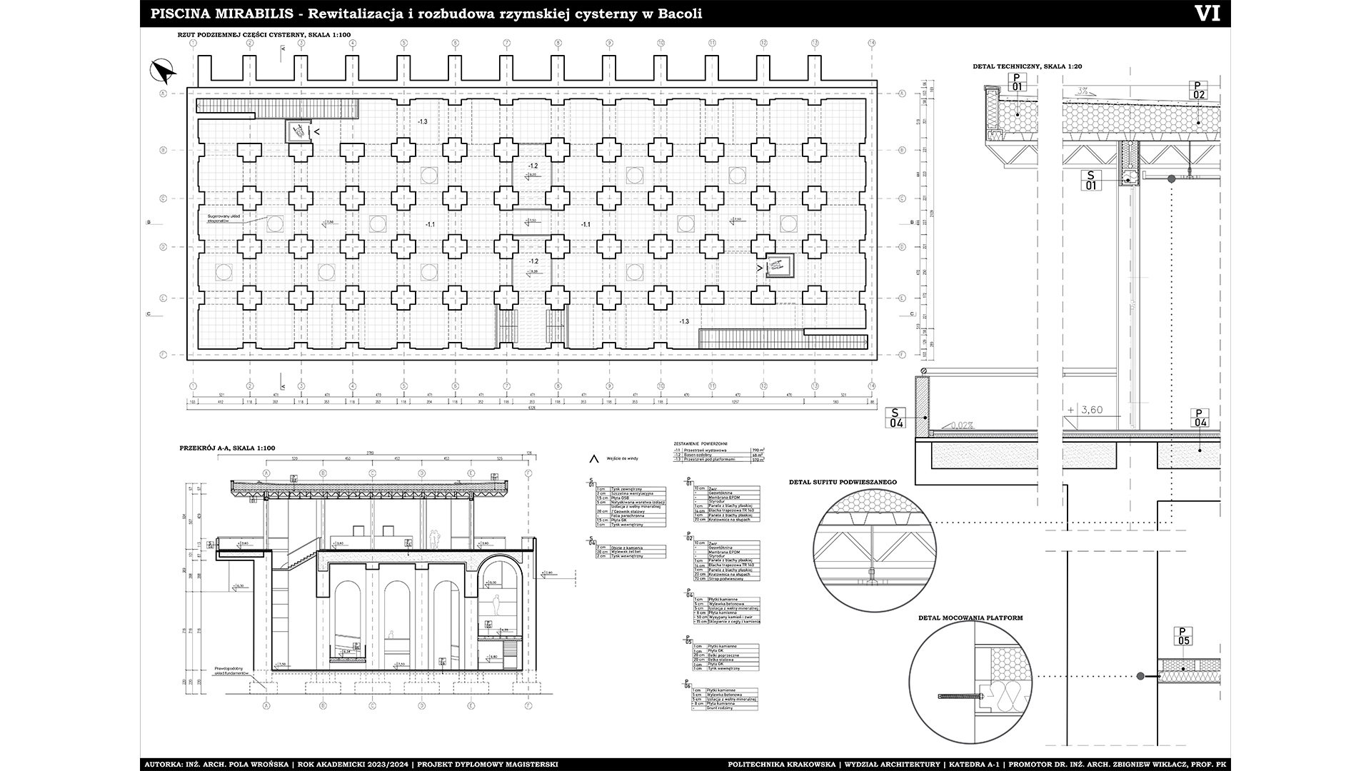
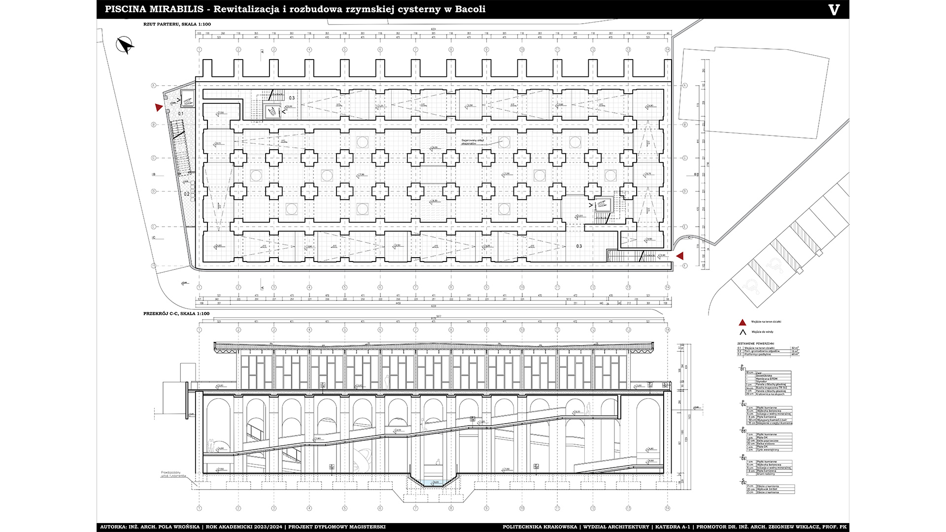
Opis idei projektu

Przedmiotem niniejszej pracy dyplomowej jest rewitalizacja i rozbudowa rzymskiej cysterny Piscina Mirabilis znającej się w miejscowości Bacoli, we Włoszech. Ideą projektu było przywrócenie starożytnego obiektu do świetności, jak i dostosowanie go do nowoczesnych potrzeb, tworząc przestrzeń rozwijająca możliwości ekspozycyjne i turystyczne obiektu. W skład opracowywanego kompleksu wchodzi zabytkowa cysterna, rozbudowana o pawilon na istniejącym stropie, rozszerzając i porządkując wejścia do podziemnej części oraz oferując odwiedzającym przestrzeń rekreacyjną. By podkreślić obecność zabytku w otoczeniu, ze względu na to że jego główna część znajduje się pod ziemią, wykorzystano kontrast między starym, kamiennym murem okalającym cysternę, a nowoczesną prostą jasną formą pawilonu znajdującego się nad zabytkiem. By nie zaburzać monumentalności wnętrza cysterny komunikacja została poprowadzona bocznymi nawami. To samo tyczy się funkcji ekspozycyjnej, która ma za zadanie współgrać z zabytkiem.