Wiktoria Boroń

Promotor

dr inż. arch. Jarosław Huebner, prof. PK

Recenzent

dr inż. arch. Krzysztof Petrus

Tytuł pracy

Centrum Kultury Chin w Katowicach

Jednostka dyplomująca

Katedra Kształtowania Środowiska Mieszkaniowego A-3

Opis idei projektu

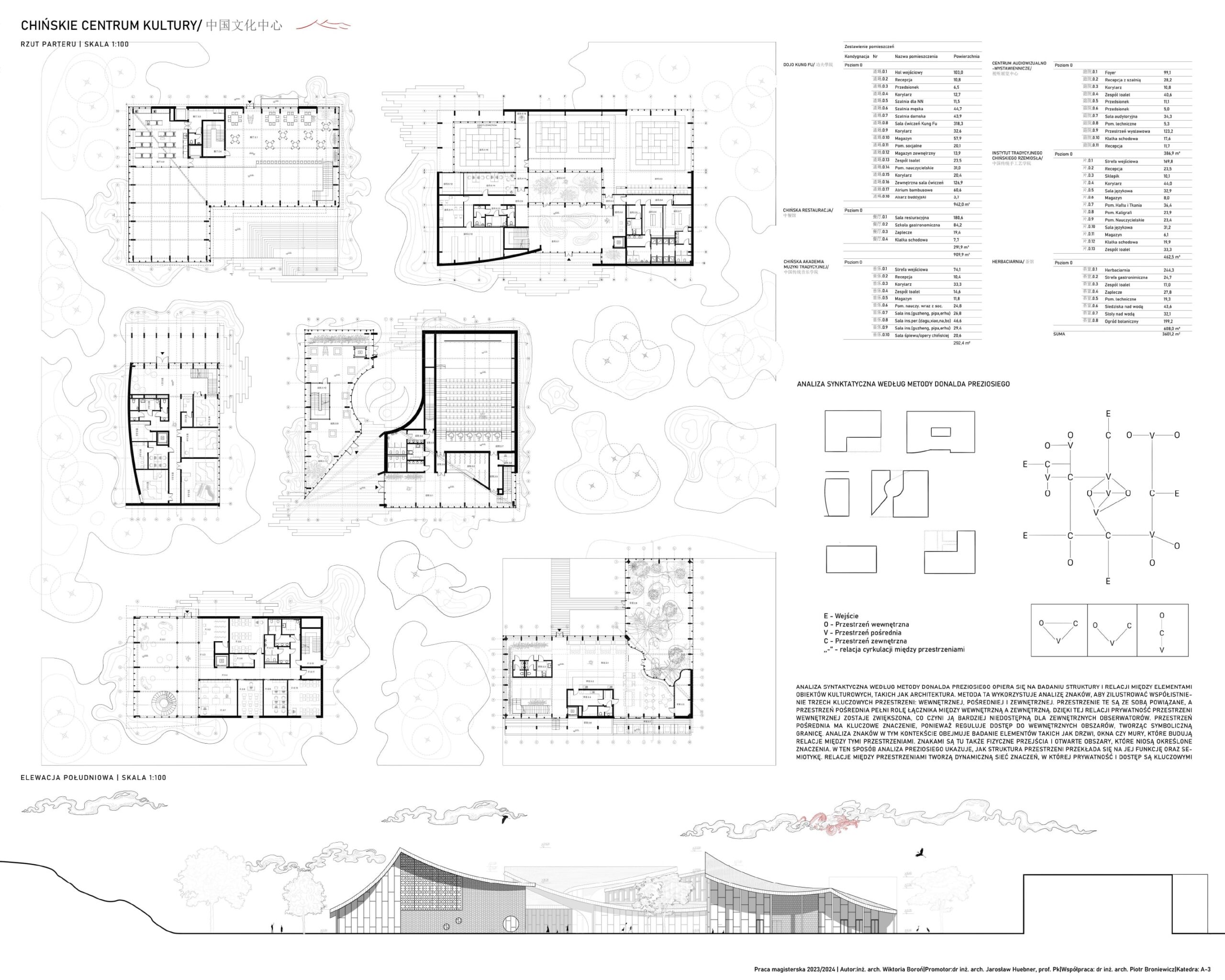
Podstawową koncepcją projektu architektonicznego było stworzenie kompleksu budynków, który nie tylko spełnia zamierzone funkcje, ale także swoją formą edukuje odwiedzających o chińskiej tradycji i kulturze. Całość założenia bazuje na koncepcie tradycyjnego chińskiego domu Shieyuan, opartego na harmonii, osiowości oraz współgrających ze sobą dziedzińcach. Cały kompleks składa się z sześciu budynków na planie kwadratu, tworzących między nimi małe dziedzińce, które są ze sobą połączone. Funkcje tych budynków zostały starannie dobrane, aby zapewnić kompleksowe zrozumienie chińskiej kultury. Należą do nich szkoła sztuk walki Kung Fu, tradycyjna chińska restauracja, herbaciarnia, szkoła muzyczna z tradycyjnymi chińskimi instrumentami, szkoła chińskiego rzemiosła i centralny budynek, który stanowi serce kompleksu, mieszczący audytorium i przestrzeń wystawową. Jest on odzwierciedleniem centralnego dziedzińca, którego zadaniem było łączenie i integrowanie społeczności zamieszkującej.
Całość założenia charakteryzuje osiowość oraz harmonia. Wszystkie budynki zlokalizowane są wokół głównego budynku zamykając wszystko w kwadracie. Projektowane obiekty mają delikatną lekką formę o drewnianej konstrukcji ramowej, nawiązującej do tradycyjnych konstrukcji wykorzystywanych w Chinach od tysiącleci. Ważnym aspektem projektu było również wykorzystywanie ceramiki w projekcie zarówno na dachach jaki elewacjach.
Głównym pomysłem projektu jest stworzenie nowego centrum kulturalnego poświęconego tradycjom Dalekiego Wschodu w Katowicach. Projektowanie instytutów, domów kultury i centrów kultury w różnych regionach jest powszechne i popularne, aby lokalna społeczność mogła poznać i zaangażować się w tradycje, historię i kulturę różnych miejsc. Katowice są idealną lokalizacją dla takiego projektu, ponieważ są jednym z większych i bardziej prosperujących miast w Polsce. Miasto jest dobrze skomunikowane, zarówno drogą lądową, jak i powietrzną, co czyni je dostępnym i doskonałym miejscem dla takiej inicjatywy kulturalnej. Podobne centra kulturalne poświęcone Dalekiemu Wschodowi istnieją w innych polskich miastach, co sprawia, że ​​Katowice są odpowiednim wyborem dla kolejnego rozwoju.