Katarzyna Dziadoń

Promotor

dr inż. arch. Jan Łaś, Prof. PK

Recenzent

prof. dr hab. inż. arch. Ewa Stachura

Tytuł pracy

Kompleks agroturystyczny z cydrownią w Szczyrzycu

Jednostka Dyplomująca

Katedra Planowania Przestrzennego Projektowania Urbanistycznego I Ruralistycznego A-5 

Opis idei projektu

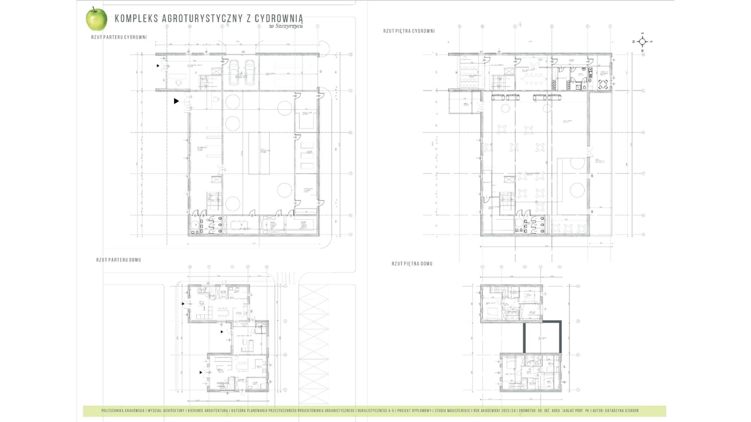
Przedmiotem opracowania pracy dyplomowej jest projekt zespołu agroturystycznego z cydrownią, zlokalizowanego na malowniczym terenie w województwie małopolskim- Szczyrzycu. Projekt zakłada stworzenie obiektu, który zapewni komfortowy wypoczynek gościom, a także umożliwi produkcję i degustację cydru w naturalnym otoczeniu. Głównym założeniem tego projektu było stworzenie przestrzeni sprzyjającej relaksowi, bliskiej naturze, z równoczesnym zachowaniem pełnej dostępności dla osób niepełnosprawnych. Projektowany kompleks agroturystyczny składa się z kilku obiektów, w tym budynków mieszkalnych pod wynajem dla gości, cydrowni oraz domu wielopokoleniowego gospodarza. Na terenie obiektu znajdują się również sady jabłkowe, które będą dostarczać surowca do produkcji cydru. W budynku cydrowni przewidziano strefy produkcyjne i magazynowe na parterze, a także restaurację i sklepik z lokalnymi produktami na wyższych kondygnacjach. Dodatkowo, zaplanowano przestrzeń edukacyjną, gdzie odwiedzający będą mogli poznać proces produkcji cydru. Na terenie kompleksu przewidziano także strefy relaksacyjne, takie jak ogród z miejscami do odpoczynku oraz ścieżki spacerowe prowadzące przez sad. Architektura budynków harmonijnie wpisuje się w krajobraz, a zastosowanie naturalnych materiałów, takich jak drewno , podkreśla związek z otoczeniem. Obiekty są otwarte na zewnątrz dzięki licznym przeszkleniom, co umożliwia swobodny kontakt wzrokowy z naturą i tworzy przyjazną atmosferę. Konstrukcja obiektów jest zaprojektowana zgodnie z zasadami zrównoważonego budownictwa, zapewniając energooszczędność i minimalny wpływ na środowisko. Zespół agroturystyczny został zaprojektowany z myślą o wygodzie użytkowników, funkcjonalności przestrzeni oraz wysokich standardach bezpieczeństwa, w tym zgodności z wymaganiami ochrony przeciwpożarowej.