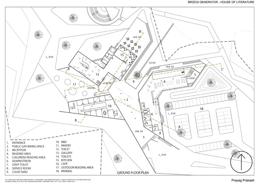
Dyplomy magisterskie 2023/2024
Mateusz Kołacz
Małgorzata Marek
Zuzanna Wojas
Natalia Dolewska
Michalina Bizoń
Martyna Delikat
Jakub Folwarczny
Jagoda Florczak
Dongchen Qi
Ruoxu Wang
Konrad Stankiewicz
Wojciech Rybiński
Małgorzata Dziuba
Jakub Czub
Yevheniia Kaminska
Magda Małgorzata Brodziak
Zlata Hrabtsevich
Katarzyna Koterba
Dominika Golińska
Helena Donimirska
Gabriela Latocha
Krystian Żbik
Klaudia Wołoszyn
Magdalena Hamielec
Łukasz Chyba
Katarzyna Kurbanly
Aleksandra Krawiec
Natalia Banaś
Karolina Pietrzkiewicz
Wiktor Rybczyński
Damien Beaumont
Magdalena Mróz
Kaja Bartula
Prace studentów
A-6